Automatic pallet wrapperRotomatic
Automatic wrapping machines are the ideal solution to increase the production capacity, quality and reduce packaging cost. These machines are required in productions with medium to very high capacity of wrappedpallets. The machines feature is very easy to operation with simple control panel in an automatic and manual mode. Key values of wrapping in stretch foil are: high firmness of packaging, low cost, durability, compactness, esthetics, fixation of goods on a pallet or in groups, low cost, protection of materials and goods against dust and rain, possible to recycle, package without a heat source.
138pal./hour
20programs
kilograms Technical information
The latest fully automatic machine designed for inclusion in the transport lines. High productivity of machines is achieved by two innovations: wrapping technology, where goods are wrapped with high speed of rotating foil around pallet; Rotomatic Profi Plus is equipped by 2 wrapping devices on the wrapping ring compare to 1 device as other Rotomatic models.
Rotomatic is capable, after pallets of goods loading, it will automatically run the wrapping cycle; wrap pallet and send a signal about accomplished wrapping. The default wrapping position is optional, allowing a fixation of only the top or bottom reinforcement in the middle of wrapped pallet. High quality packaging of all types (single, cross-, dust-and water-tight) is still enhanced by a function of the film thermal ending with the last foil layers of wrapped pallet
Application
Machine is designed for processes with high and very high capacity packaging and high demands on the packaging, which ensures perfect fixation of the turntable at a minimum of films for packaging and light goods where the dynamic forces are not acceptable.
Following parameters apply to ROTOMATIC Profi+ DOUBLE
| Wrapping capacity (pal./hour): | 138 |
| Max. wrapping goods diagonal(mm): | 1700 |
| Number of programs: | 20 |
| Wrapped pallet size LxW (mm): | 1200x800 |
| Max. wrapped pallet size (mm): | 1250x1250 |
| Pallet height reading: | Optical |
| Min. height of wrapped pallet (mm): | 500 (1000 with topsheet) |
| Pre-stretching device: | 1 el. motor |
| Maximum ring speed (rpm): | 60 |
| Machine dimensions LxW (mm): | 3165x2400 (with conveyour) |
| Type of control panel: | Touch LCD |
| Air pressure (MPa): | 0,6 - 1,5 |
| Operational voltage (V): | 3x400, 50Hz |
| Electric input (kVA): | 16 |
ACCESSORIES
Optional machine version
| Max. wrapping goods diagonal (mm): | 2300, 3000 |
| Increased of load capacity (kg): | 1500 |
| Max. wrapping height (mm): | 2100 (for Frame 1700/1,55m) other upon request |
| Pre-stretching foil device: | 1 el. motor digitally controlled, 2 el. motor digitally controlled, DOUBLE 1 el. motor digitally controlled |
Accessories
- Electric top-platen for unstable goods
- Automatic topsheet applicator
- Pallet lifting device for wrapping from bottom edge
- Straightening device
- Topsheet airblow holder
- Loading/unloading conveyor
- Fencing
- Light barriers and safety protection
- Non-standard color version
Video
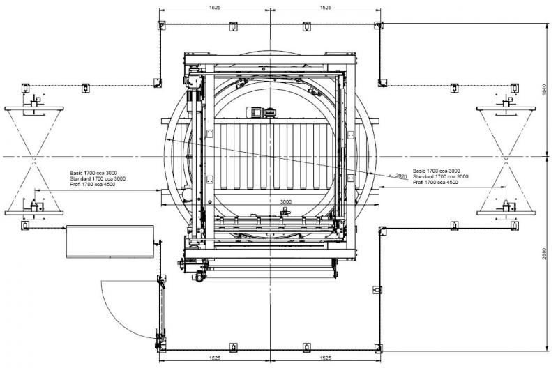
INSTALLATION LAYOUT
SIMILAR PRODUCTS
- :
- 80 x 1200(1500)
- :
- YES
- :
- :
- 20
- :
- 2370 (3070)
- :
- 30
- :
- with rollers




