Automatický ovinovací strojROTOMATIC
Ovinovací balicí stroje jsou ideálním řešením pro zvýšení kapacity i kvality balicího procesu, pro snížení nákladů na balení i pro odstranění fyzické námahy zaměstnanců. Automatické stroje jsou vhodné do provozů s vyšší kapacitou balených palet. Stroje lze díky přehlednému ovládacímu panelu velmi jednoduše obsluhovat.
138pal./hour
20programs
1500kilograms 
Technical information
Plně automatický ovinovací stroj ROTOMATIC je vhodný pro zařazení do dopravníkových tratí. Vysoká produktivita stroje je umožněna technologií balení, při níž balená paleta není otáčena jako u standardních strojů, ale je ovíjena vysokou rychlostí rotující fólií kolem této palety. Při tomto způsobu balení na paletu nepůsobí žádné dynamické síly. Stroj je schopen po najetí palety se zbožím automaticky spustit cyklus balení, tuto paletu zabalit a vyslat signál o ukončení balicího cyklu. Výchozí poloha balení je libovolná, čímž je umožněna fixace pouze horního nebo spodního okraje zboží nebo zpevnění uprostřed balené palety. Vysoká kvalita všech nastavitelných typů balení (jednoduché, křížové, prachotěsné a vodotěsné) je navíc zlepšena o možnost tepelného spojení konce fólie s posledními vrstvami fólie na balené paletě. Toto zařízení současně fólii oddělí a konec fólie zachytí pro další balicí cyklus.
Použití
Stroj je určen pro provozy s velmi vysokou kapacitou balení a velkými nároky na obal, zaručujícími dokonalou fixaci zboží na paletě při minimální spotřebě fólie. Je zvláště vhodný pro balení lehkého nestabilního zboží, kde by dynamické síly působící na rotující paletu při klasickém způsobu balení měly za následek posunutí či rozsypání zboží.
Kapacita balení (pal/hod): 138
| Počet programů: | 20 |
| Průtažné zařízení: | 1700 |
| Typ ovládacího panelu: | LCD |
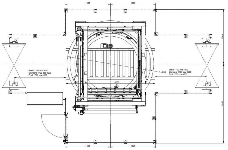
| Půdorys stroje ŠxD (mm): | 2400 x 3165 (s dopravníkem) |
| Výška stroje (mm): | |
| Uhlopříčka baleného zboží (mm): | 1700 |
| Max. velikost balené palety (mm): | 1250 x 1250 |
| Min. výška baleného zboží (mm): | 500 (1000 s překryvem) |
| Snímání výšky zboží: | optické |
| Max. otáčky oběžného kola (ot/min): | 60 |
| Tlak vzduchu (MPa): | 0,6 - 1,5 |
| Provozní napětí (V): | 3 x 400, 50Hz |
| Elektrický příkon (kVA): | 16 |
ACCESSORIES
Volitelné modifikace
| Zvětšení max. uhlopříčky baleného zboží (mm): | 2300, 3000 |
| Nosnost dopravníku (kg): | 1500 |
| Max. výška baleného zboží (mm): | 2100 (pro Skelet 1700/1,55m) ostatní na dotaz |
| Průtažné zařízení | 1 el. motor, 1 el. motor digitálně řízený, 2 el. motory digitálně řízené |
Volitelné příslušenství
- Elektrický přítlak nestabilního zboží
- Automatický překryv
- Zvedací zařízení pro podbalení palety
- Rovnací zařízení
- Přífuk překrývací fólie pro zvýšení výkonu balení
- Dopravníkové trati: poháněná - válečková, řetězová - 900, 1100, 1200mm
- Nakládací dopravník
- Paletová zdviž
- Oplocení stroje pro bezpečnost při balicím cyklu
- Světelné zabezpečení
Video
INSTALLATION LAYOUT
SIMILAR PRODUCTS
- :
- 800 x 1200 (900)
- :
- 1 el. motor
- :
- ANO
- :
- 20
- :
- :
- 35
- :
- S dopravníkem




